Property Inquiry
"*" indicates required fields
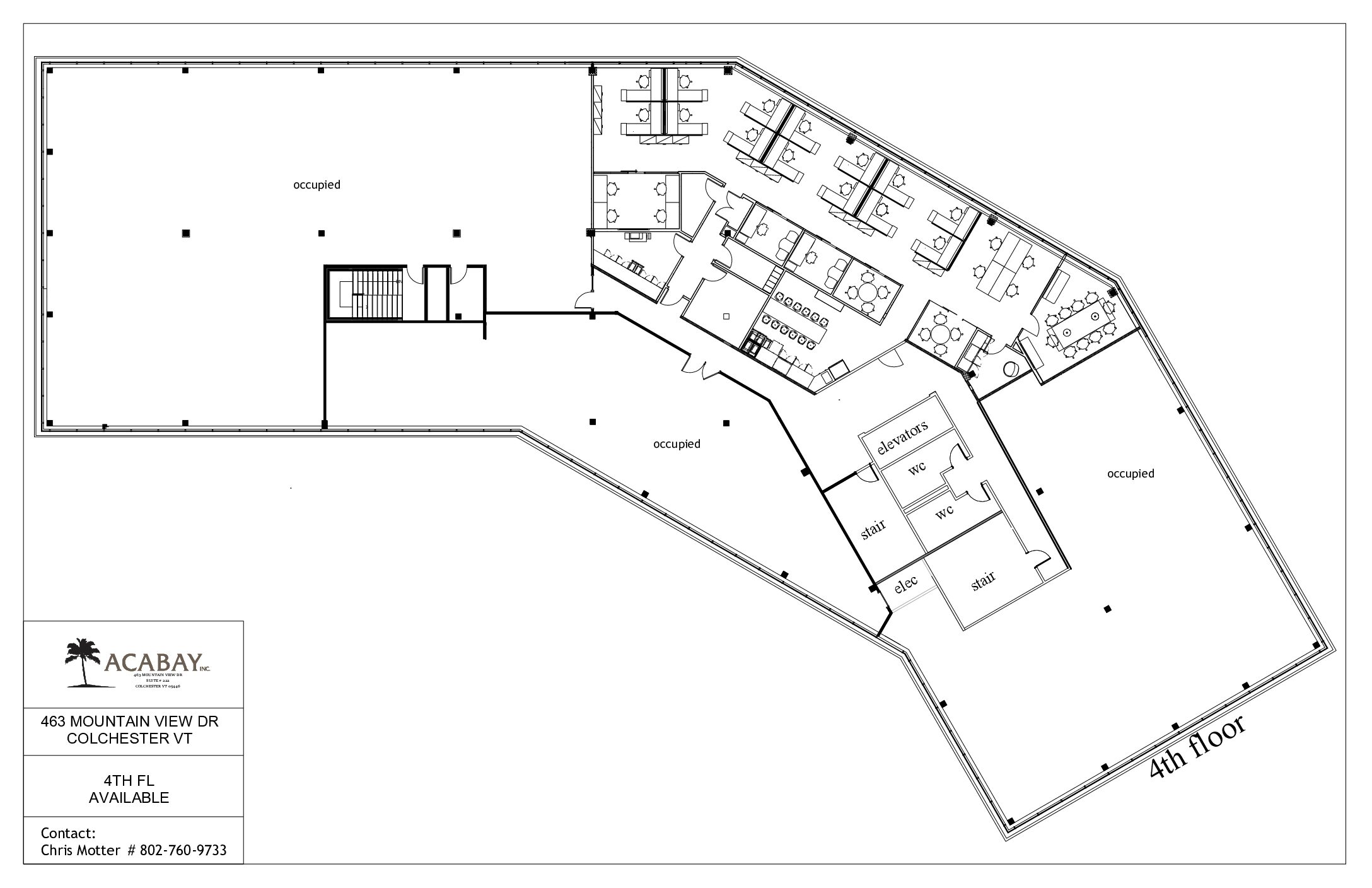
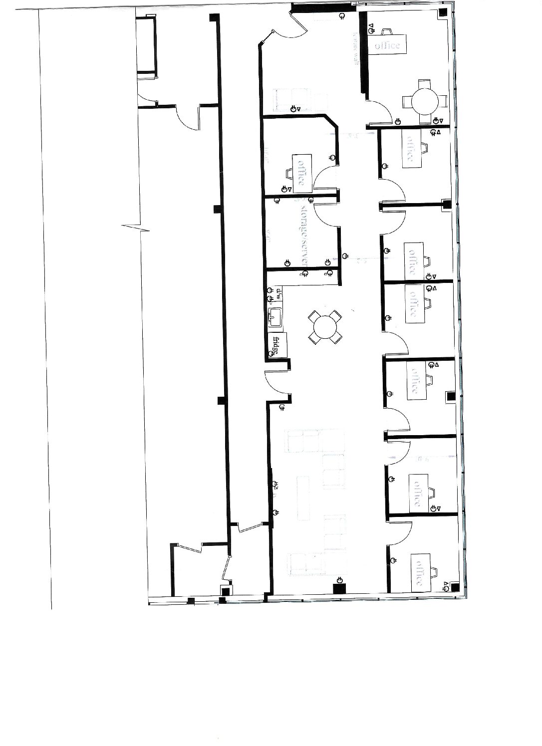
Stunning grand entry at 463 Mountain View with an office suite that is available with private reception, conference room, 3 offices and additional smaller office space. Reach out with additional questions. 2nd Floor of 463 – 1,831 SF 1st Floor of 463 – 7,488 SF 4th Floor of 463 – Fully furnished ready to move...










Stunning grand entry at 463 Mountain View with an office suite that is available with private reception, conference room, 3 offices and additional smaller office space. Reach out with additional questions.
2nd Floor of 463 – 1,831 SF
1st Floor of 463 – 7,488 SF
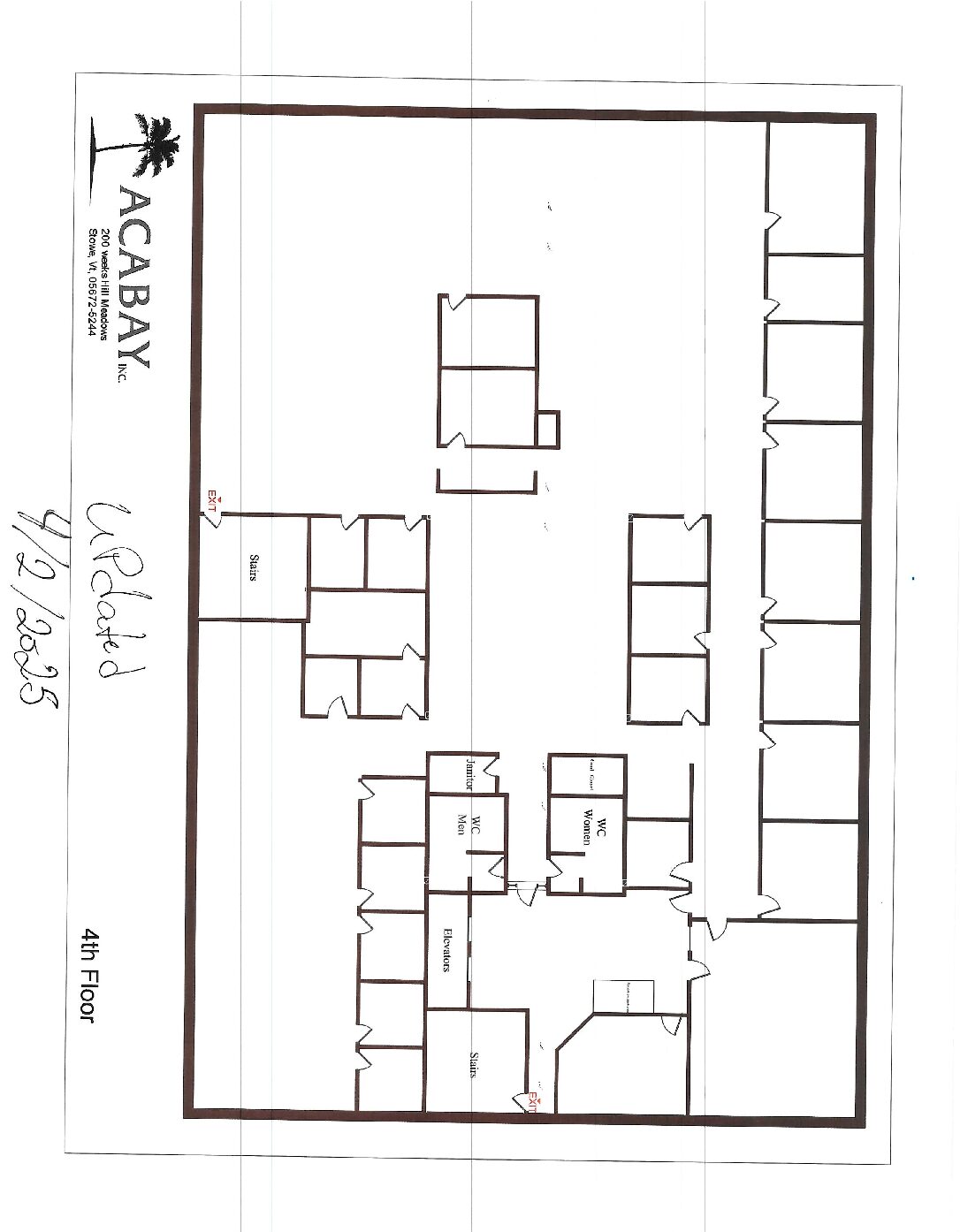
4th Floor of 463 – Fully furnished ready to move in space – 4,654 SF
1st Floor of 463 – Fully furnished ready to move in space – 2,270 SF
4th Floor of 354 – 15,987 (entire floor) Available late November
"*" indicates required fields